Annas Dorf – Zwischen Offenheit und Geborgenheit
Entwurf von Tessa Marie Pavikevik & Sophie Zajons
Ein Krankenhaus ist ein Ort mit klaren Wegen, festen Teams und einem sicheren Umfeld – wie ein Dorf mit Dorfkern, bekannten Personen und dem Gefühl von Geborgenheit. Auf dieser Grundlage sieht die Station Kinder und Jugendliche nicht nur als PatientInnen, sondern als junge BewohnerInnen mit wechselnden Bedürfnissen nach Aktivität oder Rückzug.
Die Orientierung folgt einem räumlichen Prinzip aus der abstrahierten Kubatur eines Hauses: Dreiecke markieren in Grün- und Blautönen offene Bereiche, Rechtecke in einem Rostrot Rückzugszonen. Icons und Bezeichnungen unterstützen alters- und sprachunabhängige Orientierung. So wird selbstbestimmtes Bewegen möglich.
Zentrale Orte stärken die Übersichtlichkeit und Gemeinschaft: Das Stationszimmer als “ratsames Rathaus“ bildet den klaren Mittelpunkt, der Aufenthalts- und Wartebereich “wartende Wegkreuzung“ bietet
einen Raum zwischen Arzt- und Aufnahmezimmer, der “sonnige Sitzplatz“ am Flurende ermöglicht Rückzug und Begegnung für aufgenommene PatientInnen. Die Station wirkt wie ein kleines Dorf: lebendig und sicher. Ein Ort, der Orientierung, Gemeinschaft und Geborgenheit vermittelt.
Das Konzept versteht das Dorf nicht als Bild, sondern als Gefühl. Ein Dorf lebt von Gegensätzen, die sich ergänzen: von Freiheit, Offenheit und Gemeinschaft auf
der einen Seite und Schutz, und Geborgenheit auf der anderen.
Genau dieses Spannungsfeld wird auf die Station übertragen. Offene Bereiche laden zum Begegnen und Teilhaben
ein und vermitteln Weite und Bewegung, wie Plätze, Wege und Wiesen im Dorf. Ruhige Bereiche schaffen Rückzug und Privatheit, vergleichbar mit dem Haus als geschütztem Ort. Farben und Formen greifen diese Stimmungen auf und unterstützen die Orientierung. So entsteht eine Umgebung, die sich nicht erklären muss, sondern intuitiv verstanden wird.
WALDWEG – „Der Wald ist das Krankenhaus unserer Seele“
Entwurf von Sabrina Schlag
Das Konzept begann mit der Frage, was die geistige Gesundheit stärkt. In Anlehnung an Park und Teich, die zu besuchen leider nicht jedem Patienten möglich ist, entstand schnell die Vision, die Natur – den Wald – symbolisch in den Innenraum zu übertragen. Ergänzt wird das Konzept durch den japanischen Begriff „Komorebi“ – dieser beschreibt das sanfte Spiel des Sonnenlichts, das durch die Blätter der Bäume fällt, und steht zugleich für die Wertschätzung der Schönheit der Natur.
Durch natürliche Farben, organische Formen und akustische, optische und interaktive Details wird eine Atmosphäre geschaffen, die Geborgenheit und Ruhe vermittelt und aufmerksame Beobachter auf eine Entdeckungsreise einlädt. Großzügige Tageslichtführung verstärkt die Verbindung zur Natur. Insgesamt entsteht ein Konzept, das Natur nicht nur zitiert, sondern als emotional wirksames Gestaltungselement begreift und gezielt zur Förderung des Wohlbefindens einsetzt
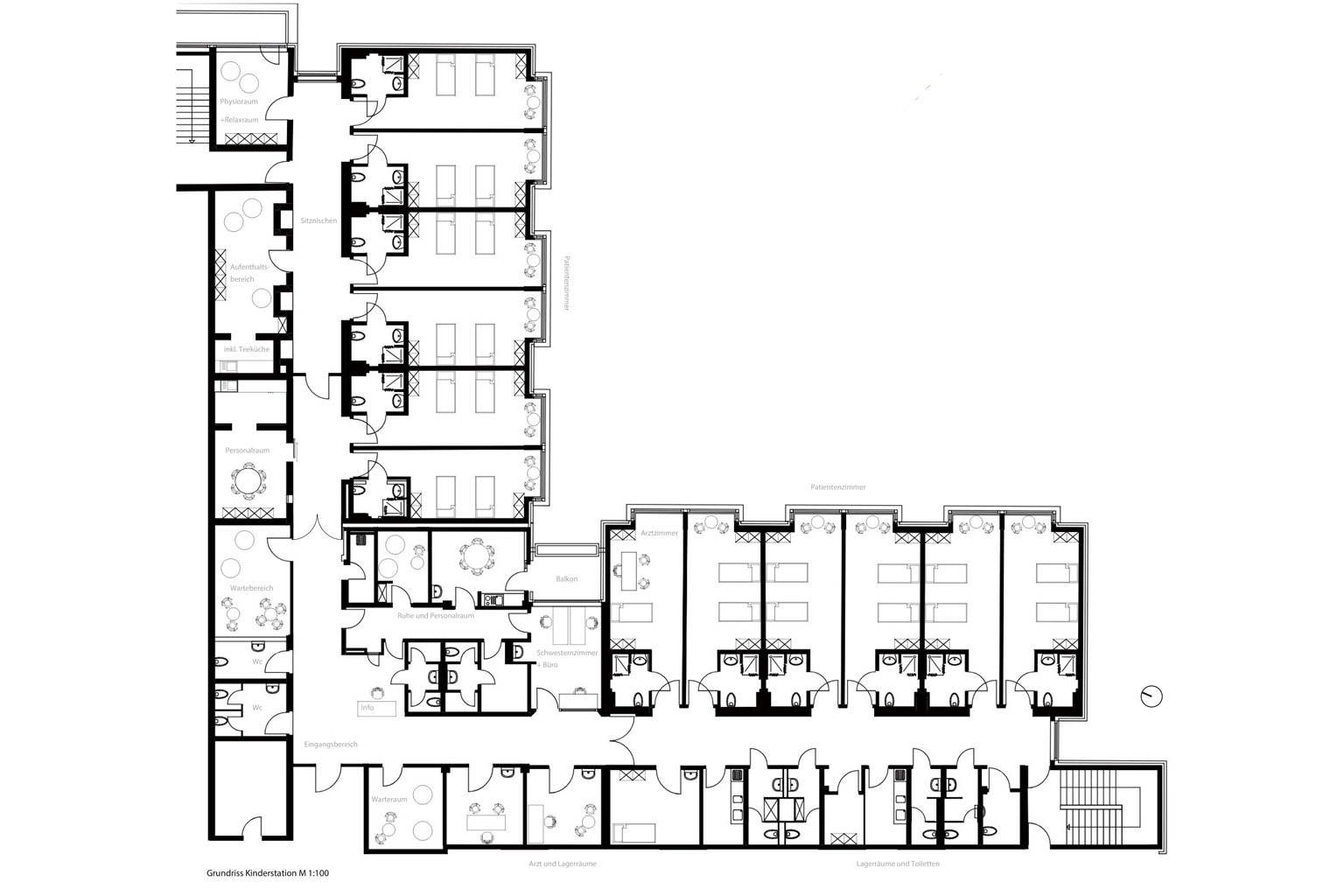
Balance Room – Eine Kinderstation als räumliche Reise.
Entwurf von Victoria Demuth & Ronja Selzam
Die Kinderstation versteht sich als räumliche Reise durch vier atmosphärische Qualitäten: Sicherheit und Ankommen, Bewegung und Ausgleich, Offenheit und Orientierung sowie Energie und Lebensfreude. Diese werden nicht wörtlich dargestellt, sondern in eine räumliche Abfolge unterschiedlicher Aufenthaltsbereiche übersetzt. So wird der Weg durch die Station zu einer symbolischen Entwicklung – vom Kranksein zur Heilung, vom Stillstand zur Bewegung.
Die Gestaltung orientiert sich an den Bedürfnissen von Kindern, Eltern und Personal, wobei die Kinder im Mittelpunkt stehen. Unterschiedliche Aufenthaltsbereiche ermöglichen sowohl Rückzug und Geborgenheit als auch Begegnung und Gemeinschaft und tragen zu einem ausgewogenen Stationsalltag bei.
Auch Eltern und Angehörige finden Orte zum Verweilen, Mitwirken oder Beobachten. Durch Atmosphäre, Lichtführung und Materialität entsteht eine Umgebung, die funktionale Anforderungen erfüllt und zugleich das Wohlbefinden aller Nutzer*innen unterstützt.
Das Gestaltungskonzept basiert auf den vier Elementen Feuer, Wasser, Luft und Erde, die als emotionale und räumliche Leitmotive durch die Station führen. Feuer steht für Energie, Wärme und Lebensfreude. Als Symbol des Heilimpulses prägt es den Aufenthaltsbereich, in dem dynamische Formen und warme Farben eine lebendige Atmosphäre schaffen. Wasser verkörpert Bewegung und emotionale Balance. Diese Qualitäten prägen insbesondere das Arzt- und Aufnahmezimmer, in denen eine beruhigende und vertrauensvolle Umgebung entsteht. Luft steht für Offenheit, Leichtigkeit und Orientierung. Helle Materialien und klare Raumstrukturen im Ankommens- und Erschließungsbereich unterstützen die Orientierung. Erde vermittelt Geborgenheit, Sicherheit und Stabilität. In Patientenzimmern, im Snoezelen-Raum und im Empfangsbereich schaffen natürliche Materialien und eine ruhige Farbwelt eine schützende Umgebung für Kinder und Eltern.
Cube Station – Warten zwischen Zeit, Atmosphäre und Heilung
Entwurf von Joelyn Kroll
Warten im Krankenhausflur ist selten neutral. Für Kinder und ihre Familien ist er oft von Unsicherheit und Anspannung geprägt. Trotz intensiver Nutzung bleibt er meist ein anonymer Durchgangsraum ohne Aufenthaltsqualität.
Mit dem Projekt Cube Station wird der Flur der Kinderstation im Diakovere Annastift neu gedacht: nicht nur als Verkehrsraum, sondern als Teil des Heilungsumfeldes. Durch klare Raumstrukturen, warme Materialien, gezielte Farbgestaltung und Aufenthaltszonen entsteht ein Ort, der Orientierung gibt, Ruhe vermittelt und zum Innehalten einlädt.
So wird der Flur zu einem Raum, der Geborgenheit schafft und den Krankenhausalltag für Kinder, Eltern und Mitarbeitende menschlicher macht.
Die architektonische Idee von Cube Station stellt den Flur der Kinderstation in den Mittelpunkt. Er fungiert als verbindendes Element, das Orientierung gibt, Bewegung lenkt und zugleich Aufenthaltsqualität schafft. Von hier aus sind alle Bereiche der Station klar ablesbar – darunter Wartezonen, Informationsbereich, Behandlungs- und Patientenzimmer sowie Personal- und Lagerflächen. Gezielte Blickbeziehungen sorgen für Übersicht und Sicherheit.
Das Materialkonzept verbindet Atmosphäre und Hygiene. Strapazierfähiges Linoleum, transparente Glasflächen und versiegeltes Eichenholz schaffen eine warme, zugleich funktionale Umgebung. Akustikpaneele verbessern die Raumakustik, während Sitznischen, Kunstwerke und Tageslichtleuchten den Flur zu einem freundlichen und identitätsstiftenden Ort machen.
station 2.
Entwurf von Katrin Elias & Kristin Floruß
Im Mittelpunkt des Konzepts steht das Ankommen. Der Zugang zur Station wird offen und übersichtlich gestaltet. Unklare Wegführungen und versteckte Ecken werden vermieden. Bereits beim Betreten der Station können Kinder andere spielende Kinder sehen, wodurch Hemmschwellen abgebaut und Neugier geweckt werden. Eltern erhalten schnell einen Überblick und fühlen sich informiert und sicher.
Transparenz und klare Sichtbeziehungen sind dabei zentrale Gestaltungselemente. Ein wesentliches gestalterisches Mittel ist der gezielte Einsatz von Holz. Dort, wo es aus hygienischen Gründen möglich ist, insbesondere in Patientenzimmern, im Aufenthaltsbereich und an der Rezeption, schafft es eine wohnliche Atmosphäre. Holz wirkt beruhigend und bildet einen bewussten Kontrast zur oft kühlen Gestaltung von Krankenhäusern.
Die Gestaltung greift die umgebende Natur auf und holt sie durch Materialien, Farben und Licht sinnbildlich in die Station hinein. So entsteht eine helle, freundliche und klar strukturierte Umgebung, die Sicherheit vermittelt und für Kinder, Eltern und Pflegepersonal gleichermaßen eine angenehme Atmosphäre schafft.





























